










Architectura, Herontwikkeling van basisschool Voorheide: een harmonieuze combinatie van renovatie en nieuwbouw, 08/2025
Kubus, Architects in Motion verenigt techniek en menselijkheid bij abdijrenovatie, 08/2025
Rockpanel, Duurzame facelift voor uniek educatief centrum, 07/2025
tvl.be, Lommel SK opent binnenkort nieuw trainingscomplex, 07/2025
Voka, Architects in Motion ontwerpt het nieuwe trainingscomplex van Lommel SK, 04/2025
made-in.be, Heilig Hartziekenhuis Mol investeert in toekomst met nieuwe vleugel ‘HartBouwt’, 04/2025
made-in.be, Spraakmakend | Turnhouts architectenbureau ontwerpt renovatie trappistinnenabdij in Brecht, 03/2025
De Tijd, ‘Onze vorm van cohousing maakt wonen in de stad betaalbaarder én socialer’, 12/2023
In 2017 bestond VIBO – Vrij Instituut voor Buitengewoon Onderwijs – in Turnhout 60 jaar. Destijds opgericht als ‘Levensvreugde’ met een tiental kinderen, is VIBO nu een overkoepelende organisatie van 5 scholen – zowel lager als secundair – dat aangepast onderwijs met zorg aanbiedt voor meer dan 650 leerlingen. Daarnaast heeft VIBO de verantwoordelijkheid voor de begeleiding van meer dan 150 scholen verspreid over de regio Kempen. VIBO draagt zo direct en indirect bij tot het onderwijs voor ruim 900 kinderen in een regio die zich uitstrekt van Laakdal tot Hoogstraten.
Deze gestage groei manifesteerde zich ook in een constante nood aan uitbreiding van de huisvesting. Momenteel liggen de gebouwen verspreid over twee locaties: VIBO De Brem aan de Oude Arendonkse Baan in Oud-Turnhout en VIBO De Ring aan de Noord-Brabantlaan in Turnhout, een onderdeel van de R13, de ring rond Turnhout. Op haar beurt dreigde deze beschikbare bebouwde oppervlakte te klein te worden en omdat er geen budget was om bij te bouwen, werden door een sponsor tijdelijk 130 containers ter beschikking gesteld waarin klaslokalen konden worden ondergebracht. Toen er enkele jaren geleden zicht kwam op een eventuele derde locatie, een leegstaande school in Ravels, werd architect Luc Vanhout van Architects in Motion (AIM) gevraagd een kostenraming te maken om de aanpassingswerken te begroten.






De architect nam het initiatief eerst een studie te maken van het volledige VIBO-patrimonium om op basis van die bevindingen een masterplan op te maken dat onder andere ook de logistieke problemen waar de scholengroep al geruime tijd mee kampt mee in kaart zou brengen. De containerklassen zijn een goede tijdelijke oplossing maar de onderhouds- en verwarmingskosten zijn een zware financiële last om te dragen. Daarnaast zou de derde locatie extra wegen op het transportbudget: het grote merendeel van de leerlingen wordt ’s morgens thuis opgehaald en na afloop van de lessen ook teruggebracht. Momenteel zijn hiervoor 27 autobussen in dienst. Een duurzame reorganisatie drong zich op en motiveerde de architect en de opdrachtgever het nieuwe masterplan in die zin op te maken. In de visie van de architect wordt de site van De Brem geoptimaliseerd zodat alle gebouwen in de toekomst op die site in twee fasen gecentraliseerd kunnen worden, maximaal inspelend en rekening houdend met de vele troeven en mogelijkheden van het domein. De bouw van de eerste fase van het masterplan start in het najaar van 2020. De opbrengst van de verkoop van campus De Ring wordt aangewend als eigen financiële inbreng. Voor de overige 65% werden overheidssubsidies aangevraagd (2004) en verkregen (2020).








Voor het ontwerp en uitwerking van het masterplan werkt AIM samen met het architectenbureau OM/AR en Omgeving, bureau voor landschapsarchitectuur en urbanisme, beide uit Antwerpen. In hun ontwerp zetten ze resoluut in op een brede scholencampus waarbij ze ook expliciet rekening willen houden met eventuele toekomstige noden en aanpassingen. Door de bebouwingszones in relatie met de bestaande gebouwen strategisch in te planten wordt een beheersbare en overzichtelijke scholencluster gevormd die zich ontwikkelt vanuit het hart van de groene site. Om het specifieke karakter van het onderwijs waarvoor VIBO wil staan te ondersteunen en alle aangeboden opportuniteiten van de plek optimaal in het ontwerp te integreren, vertrekken de ontwerpers van een integrale aanpak waarbij de geborgen leer- en leefwereld gevrijwaard blijven. De relatie binnen/buiten is daarbij primordiaal, niet enkel voor de nieuw te ontwerpen gebouwen maar ook voor het totale project. De ontwerpers willen zich richten op verschillende ontwerpniveaus: van de micro leer- en leefomgeving tot de macro stedenbouwkundige omgeving op maat van het kind, de begeleiders, de ouders en de verschillende partners op en rond de site.
In de ruimere stedenbouwkundige context is er een opmerkelijke constante: groen. De site ligt tussen twee verkeersaders die de groene zone van oost naar west doorkruisen, namelijk de Steenweg op Mol en de Oude Arendonkse Baan. De nieuw ontworpen secundaire noord-zuidassen die de twee hoofdverkeersassen verbinden, structureren en ontsluiten de site. Aan de westzijde van de projectzone loopt een ondergrondse gasleiding. Deze bouwvrije zone wordt ingericht als bufferzone tussen de schoolsite en de naastliggende woonwijk. De bestaande groene buffer tussen de schoolsite en de aangrenzende serviceflats en het woonzorgcentrum wordt een groene fiets- en wandelweg. De site zelf is een aaneenschakeling van groene kamers met elk een eigen identiteit. Het nieuwe ontwerp versterkt de begrenzing van deze kamers en zorgt mede door een uitgekiende inplanting van de nieuwe gebouwen dat de doorwaadbaarheid van de site beter gedefinieerd wordt. Grote delen van de site worden publiekelijk toegankelijk, de schoolzones worden daar waar het noodzakelijk is, omheind. De opdeling in bestaande en/of nieuwe entiteiten zorgt ervoor dat de gebouwen elk apart kunnen functioneren en een relatie kunnen aangaan met de omgeving of andere entiteiten. Elke entiteit heeft een toegang die secundair is aan de hoofdtoegang. De kinderboerderij kan bijvoorbeeld een meerwaarde vormen voor de bewoners van de serviceflats en het woonzorgcentrum. Anderzijds kunnen de leerlingen die tuinbouw studeren als pedagogisch project ingezet worden om de tuin van deze senioreninfrastructuur te onderhouden.

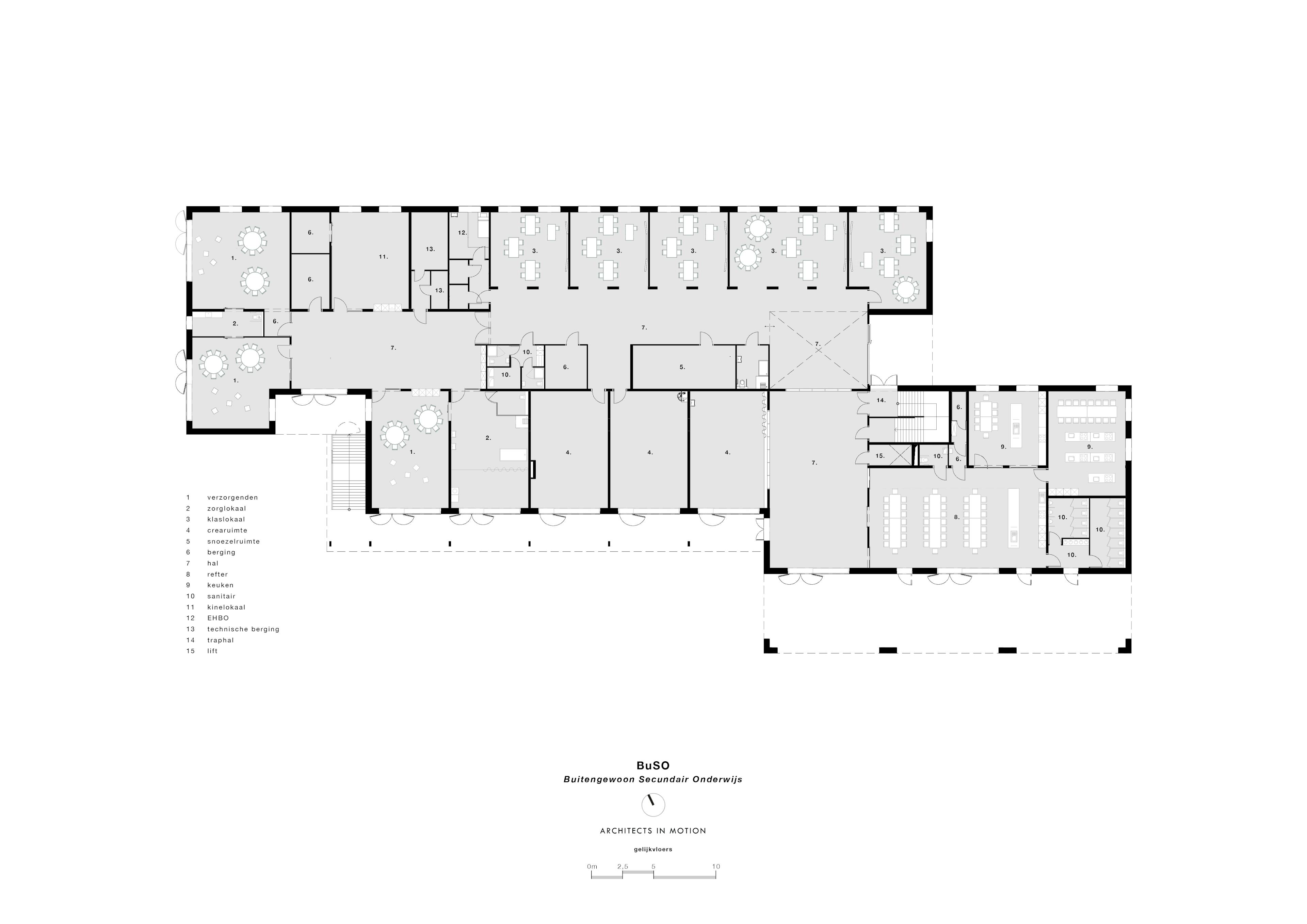
De uitvoering van de eerste fase van het masterplan bevat het bouwen van twee nieuwe schoolvolumes, een parking met fietsberging en de inrichting van een park and ride-zone aan de Oude Arendonkse Baan. Het eerste volume, een school voor kleuter- en lager onderwijs, wordt naast het bestaande gebouw aan de zijde van het oude herenhuis opgetrokken. Het ontwerp is een staalkaart van de visie die VIBO op het onderwijs en de begeleiding die ze willen aanbieden heeft en de manier waarop de architecten deze visie vertalen in een krachtige ontwerptaal en dito -filosofie. Bij het betreden van het gebouw, dat op een strak raster van 3,20 x 3,20 m werd ontworpen, komt men meteen in een grote centrale hal die de algemene diensten zoals administratie, sociaal secretariaat, snoezelruimte en time out-lokalen groepeert. De hal koppelt de verschillende kleinere afsluitbare leslokaalclusters annex verzorgingslokaal enerzijds en de zone met refter en ondersteunende diensten zoals kine, ergo, logo, ortho, muzische vorming met bijhorende bergingen anderzijds. Tussen de hal en de refter zorgt een grote dakkoepel voor invallend daglicht. De meeste lokalen geven toegang tot een overdekte buitenruimte. Via de voor de veiligheid van de leerlingen afsluitbare lift en trap bereikt men de verdieping. Ook hier vinden we hetzelfde concept terug. Clusters met leslokalen annex verzorgingslokaal en enkele andere functies zoals vergaderzalen, logo, time out en sanitair. De lerarenkamer heeft een groot dakterras. Met een interne trap bereikt men een duplexverdieping met zithoek en enkele werkplekken. Hier kan discreet overleg gepleegd worden of kunnen de begeleiders zich even terugtrekken. De technische ruimte onder het schuine dak is toegankelijk via een aparte trap. Het dakvolume wordt verder volledig ingenomen door vides die behoren tot de lokalen van de eerste verdieping.
Het tweede volume dat in het verlengde werd ontworpen van het bestaande schoolgebouw, huisvest een school voor secundair onderwijs. Hier werden veelvouden van 1,60 m gebruikt als onderliggend ontwerpraster. De klaslokalen zijn groter en de begeleiding heeft andere noden, zoals een apart kinelokaal, lokalen voor verzorgenden en crearuimtes. Alle crearuimtes hebben een rechtstreekse toegang tot de buitenruimte. Verder werd hetzelfde ontwerpprincipe toegepast: een grote centrale hal met secundaire functies zoals snoezelruimtes en time out-lokalen. De afgesloten trap en lift naar de eerste verdieping bevinden zich in de dienstenzone waar ook de werkkeukens, de gemeenschappelijke keuken, de refter en het sanitair zijn ondergebracht. Aan de refter en de centrale gangzone is een overdekte buitenspeelplaats gebouwd.
Als je de lift of trap neemt naar de eerste verdieping kom je in een ruime, lichte gangzone met een grote vide naar het gelijkvloers. Boven de zone van de refter bevinden zich lokalen voor structurerende taken en begeleiding, één van de vier verwerkingsniveaus van het buitengewoon secundair onderwijs. In de andere vleugel van de verdieping vinden we vooral therapie- en flexibele lokalen. De technische ruimte is centraal in het gebouw ingeplant om de leidingentracés te optimaliseren.






Voor de volumetrische uitwerking van de gebouwen lieten de architecten zich inspireren door de typologie van de Kempische langgevelschuur. Om de typische en karakteristieke esthetische dominantie van het schuine dak met grote dakvlakken te accentueren worden de daken en de gevel van de eerste verdieping in hetzelfde materiaal uitgevoerd. Het volume van de langgevelschuur wordt schijnbaar opgetild, wat de impact van de volumes op de omgeving drastisch verkleint. De sokkel wordt uitgevoerd in architectonisch beton. De grote raampartijen en de doordachte inplanting ervan zorgen voor doorkijkassen die samen met de uitsnijdingen uit de volumes en het verspringend ritme van de dakvlakken de gebouwen een transparante luchtigheid geven en de grens tussen natuur en gebouw quasi volatiel ervaren wordt. Omgeving uit Antwerpen tekent voor het groenontwerp. Hun inspiratiebron is het typisch Kempische landschap met bossen, vennen en begroeide zandheuveltjes. De secundaire toegangswegen slingeren tussen de bomen, de bestaande vijver en de gebouwen alsof het bospaden zijn die voor de wandelaar achter elke bocht een andere visuele beleving in petto hebben. De pedagogische tuin en de kinderboerderij worden naadloos in het geheel geïntegreerd.






Architects in Motion toont aan dat de architectuurpraktijk meer is dan enkel ontwerpen van gebouwen en begeleiden van een bouwproces. Voeling met de opdracht, (er)kennen van de noden van de klant, inleving in de historiek van het project, optimaliseren van de financiële situatie waarin een project vorm krijgt, toekomstgericht anticiperen op mogelijke evoluties,… Rekening houden met deze diversiteit aan prolegomena resulteert in een correcte definitie van en duidelijk inzicht in de noden van de klant. Samen met OM/AR en Omgeving ontwierp AIM de eerste fase van een project dat ingebed is in een complexe bestaande context. De centrale inplanting van de scholencluster op de site De Brem en het afbouwen van de satellietcampus De Ring openen perspectieven om de werking en de beleving van personeel, leerlingen, ouders en sympathisanten van VIBO te verbeteren. De keuze om met verschillende entiteiten te werken toont het respect dat de ontwerpers hadden voor het aanwezige groen en de kwaliteiten van het landschap. Het streven om de energieconsumptie en ecologische impact van het project te beperken door zo compact mogelijk te bouwen, zijn hiervan de gematerialiseerde getuigen. Door de buurt – de serviceflats en het woonzorgcentrum – maximaal te betrekken en de kwalitatieve groenzones te maximaliseren, toont de school zich als groen ankerpunt in de wijk. Het openmaken van het zicht op het oude herenhuis en de parkvijver biedt de mogelijkheid om met de grens openbaar/privé vrijer om te gaan. Door na te denken over de mobiliteit in de buurt en de aanleg van een park and ride-strook wordt de verkeersdruk tijdens de piekmomenten aanzienlijk positief beïnvloed. De ontsluiting van het geheel kan op verschillende manieren gebeuren. Het project biedt voor de later geplande tweede fase alle kansen tot slagen.
VIBO is een project dat perfect past bij het DNA van AIM. Creëren van kwalitatieve architectuur op het kruispunt van verleden en toekomst.






Opdrachtgever
VIBO
Architecten
Architects in Motion
OM/AR
Landschapsarchitecten
Omgeving
Studiebureau stabiliteit
Van hoorickx
Studiebureau technieken
Group Infrabo
Tekst
Johan Geerts - architect


DEEL
Volgende
Vorige