Architects in Motion en Master Interior organiseerden op zondag 22 juni 2025 voor een select aantal genodigden in de Schouwburg van Cultuurhuis De Warande in Turnhout een uniek benefietevent rond architecturale archieven en erfgoed. In samenwerking met AR-TUR en Erfgoed Noorderkempen werden partners, erfgoedliefhebbers en betrokken ontwerpers uitgenodigd om de heruitgave van de uitverkochte publicatie Architectuur in de golden sixties – De Turnhoutse School financieel te steunen.












AR-TUR, Heruitgave | 'Architectuur in de golden sixties: de Turnhoutse School' komt terug!, 12/2025
made-in.be, Groen licht voor hotel- en restaurantproject, 11/2025
made-in.be, Délio kip curry van Signature Foods België in de top 5 van ‘Het product Made in Kempen’: “Bereid met passie en vakmanschap in Turnhout”, 11/2025
VRT MAX, In Hemelsnaam - De abdij van Brecht in beeld, 10/2025
Architectura, AIM transformeert school in Arendonk tot groene leeromgeving, 10/2025
Architectura, Herontwikkeling van basisschool Voorheide: een harmonieuze combinatie van renovatie en nieuwbouw, 08/2025
Kubus, Architects in Motion verenigt techniek en menselijkheid bij abdijrenovatie, 08/2025
Bouwen aan Vlaanderen, Soudal Plant 5 - Brandveiligheid als basisvereiste voor fabrikant met wereldfaam, 08/2025

De wedstrijdjury heeft beslist de herbestemmingsstudie toe te wijzen aan het architectenteam van Architects in Motion en Erfgoed en Visie, uitgebreid met de expertise van het studiebureau Van hoorickx en Value Partners. Het gebouw werd destijds ontworpen door de architecten Carli Vanhout, Paul Schellekens, Lou Jansen en Rudi Schiltz en wordt als een iconisch project aanzien van wat door Renaat Braem de ‘Turnhoutse School’ genoemd werd. Het is niet zonder enige trots dat de architecten van Architects in Motion, ontstaan vanuit Atelier Carli Vanhout – Paul Schellekens en Ass., deze opdracht aanvaardden omdat ze zich bewust zijn van het belang van dit onderzoek.
Het Sint-Victorinstituut in Turnhout is een scholencomplex van de Broeders van Liefde. Door de evolutie van de school en dringende renovatienoden werd in 2017 door de Vlaamse Overheid een budget vrijgemaakt voor een nieuwbouw met hedendaagse onderwijsinfrastructuur. Voor het modernistische gebouw uit 1966 van architecten Vanhout, Schellekens, Jansen en Schiltz werd aan het team gevraagd op zoek te gaan naar een nieuwe bestemming. Architects in Motion en Erfgoed en Visie zullen vanuit hun doorgedreven kennis van de architectuur van de Turnhoutse School en hun ervaring met het renoveren en/of verbouwen ervan en hun visie op de hedendaagse noden die architectuur in het algemeen en erfgoed in het bijzonder een plaats in de 21ste-eeuwse maatschappij moet krijgen, zeker bijdragen tot een kwalitatief, functioneel en esthetisch waardevol dossier.

In de zestiger jaren van de vorige eeuw bouwden architecten Paul Neefs (1933-2009), Carli Vanhout (1931-2000) en Paul Schellekens (°1939) samen met Lou Jansen (1935-2019) en Rudi Schiltz (1938-1969) in de regio Turnhout elk een eigen praktijk uit. Deze ontwerpers waren hoofdzakelijk actief tijdens de golden sixties en bouwden verschillende eengezinswoningen, villa’s en sociale woonprojecten.
Hun architectuur was vernieuwend en modern maar verloor nooit het menselijke aspect, het maatschappelijke belang ervan en dus de lokale context uit het oog. Daarmee onderscheidden ze zich van het modernisme uit het Interbellum waar een doorgedreven functionalisme en standaardisatie centraal stonden en vaak resulteerden in afstandelijke architectuur.
De architecturale erfenis van Jozef Schellekens, die het modernisme in de jaren ’30 in de Kempen lanceerde, geldt als gemeenschappelijke inspiratiebron. Daarnaast voeren ze ook duidelijk de signatuur van de brutalistische betonarchitectuur van o.a. Ludwig Mies van der Rohe, Le Corbusier en Oscar Niemeyer en is hun architectuur beïnvloed door en geïnspireerd op de organische architectuur van Hans Scharoun en het functioneel formalisme van bijvoorbeeld Arne Jacobsen.
Voor grotere projecten en in opdracht van sommige opdrachtgevers werkten de architecten soms samen, anderen kozen voor een vaste associatie. Zo hadden Lou Jansen en Rudi Schiltz samen een bureau en richtten Carli Vanhout en Paul Schellekens eveneens een gezamenlijke praktijk op. De architecten hebben zich echter nooit in totaliteit als groep geprofileerd. Het was Renaat Braem die de groep als eerste identificeert en het begrip ‘Turnhoutse School’ wordt pas door Geert Bekaert in het boek ‘Hedendaagse Architectuur in België’ in 1995 geïntroduceerd.
Ondanks de onderlinge gelijkenissen in het werk van deze Turnhoutse architecten, waren het vooral vier sterke individuen met elk een duidelijk te identificeren en diverse ontwerpstijl. Volgens Yves De Bont, auteur van ‘100 jaar architectuur in Turnhout’ is het werk van Neefs authentiek en integer, dat van Jansen van een wiskundige perfectie en dat van Vanhout & Schellekens begeesterd en expressief.





Het gebouw van het Sint-Victorinstituut is een perfect voorbeeld van waar de Turnhoutse School voor staat: brutalistische betonarchitectuur met meer dan een duidelijke knipoog naar het werk van o.a. Le Corbusier.
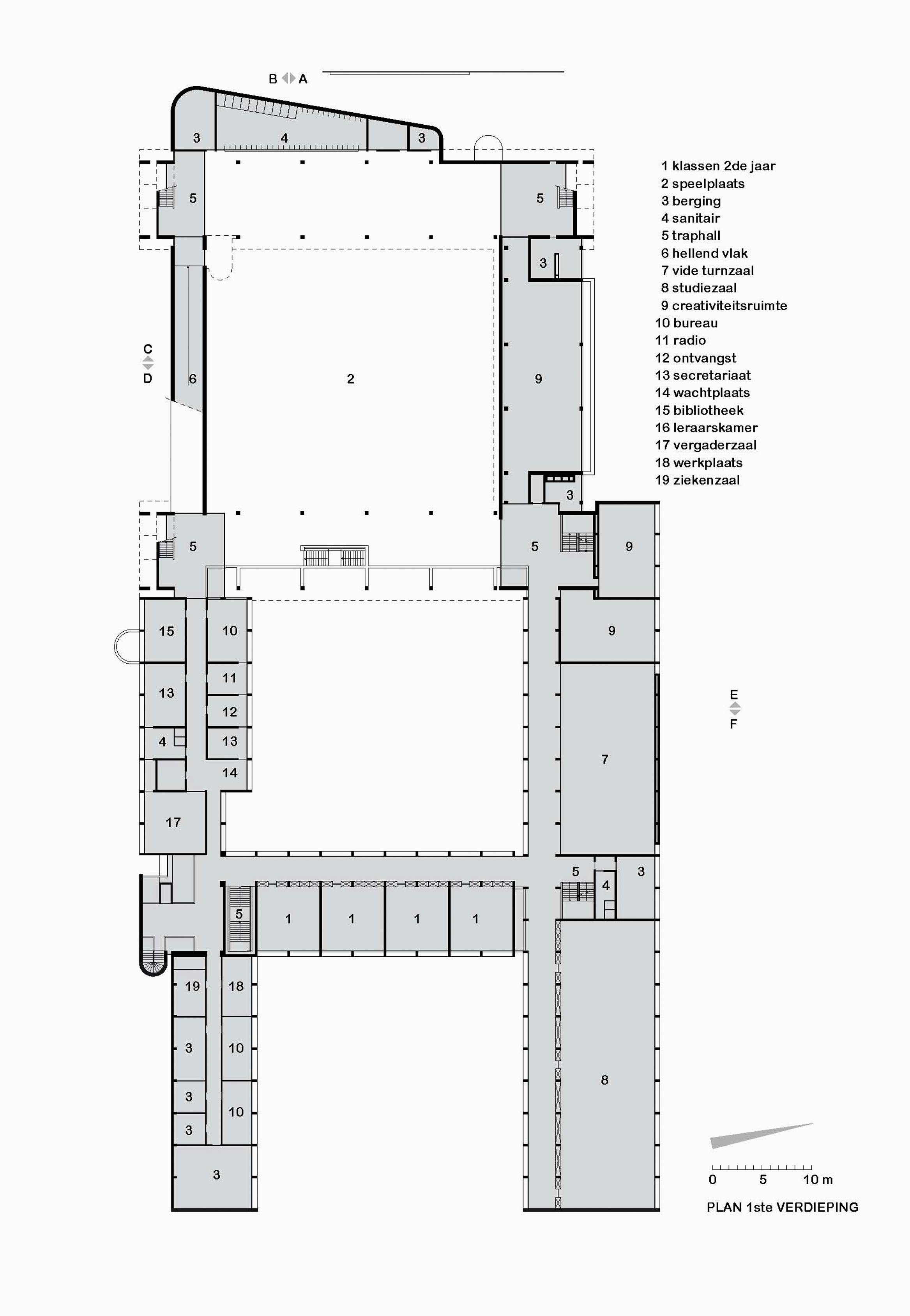
Vanaf 1962 werd onder impuls van het oud-leerlingenverbond het plan opgevat om een volledige nieuwbouw (zie foto maquette) te realiseren waarin de lagere school ondergebracht kon worden. In 1963 werden de architecten Lou Jansen en Carli Vanhout, beiden oud-leerlingen, erbij betrokken. Samen met Rudi Schiltz, associé van Jansen, werd een eerste masterplan opgemaakt. Het plan vereiste de aankoop van extra grond en opdrachtgever de Broeders van Liefde kochten de rest van de grond van de Commissie van de Openbare Onderstand aan en lieten het gods- en weeshuis Sint-Petrus, met uitzondering van de kapel, afbreken. De nieuwbouw moest een duidelijk antwoord bieden op de dominante gevangenismuur van het tegenoverliggende perceel. Toen Paul Schellekens, ook oud-leerling, zich in 1965 met Carli Vanhout associeerde, ontstond het definitieve team van vier architecten.
De school werd gebouwd op een raster van 1,30 op 1,30m. Het architectenteam besliste om alle gevels van de begane grond in donkere baksteen uit te voeren en die van de hogergelegen verdiepingen in ruw zichtbeton. De ramen werden uitgevoerd in staal.
De drie speelplaatsen uit het masterplan, waarvan één op de eerste verdieping boven de auto- en fietsenstalling en één in het gebouw, werden behouden. De achtentwintig klassen van de hoogste jaren bevinden zich in een U-vorm op de tweede en derde verdieping. In alle hoeken bevinden zich trappen. De klasgroepen van de laagste graad bevinden zich op het gelijkvloers en op de eerste verdieping.
De lagere school werd ingewijd op 13 juni 1970.






Het gebouw heeft een bijzonder karakter. De ligging, de omvang (12.000 m2), de architectuur en de erfgoedwaarde maken het erg bijzonder. Daardoor is er een specifieke aanpak vereist met het oog op een adequate valorisatie en herbestemming. Het businessplan dient een duurzame rendabele invulling te voorzien met respect voor de typische architectuur.
Het volumespel van de uitkragende gevels en van het middelste bouwblok op kolommen wordt in het ontwerp gecombineerd met de zwaarte van beton. Le Corbusier deed net hetzelfde in het klooster Sainte-Marie de la Tourette, hét voorbeeld van de brutalistische architectuur gebaseerd op zijn visionaire manifest Vers une architecture waarin hij de drie basisbegrippen uitlicht:
Le volume: hij beschouwde architectuur als een weloverwogen compositie van volumes
La surface: er dient een direct verband te zijn tussen volume en begrenzende vlakken qua vorm en functie
Le plan: het stadsplan was de basis van het ontwerp
Daarnaast ontwikkelde hij 5 pijlers voor het bouwen met gewapend beton die ook in Sint-Victor toegepast werden: les pilotis (kolommen), plan libre (muren hebben geen dragende functie dus kunnen vrij geplaatst worden), gordijngevel (niet dragende gevel), fenêtres-bandeaus (lange horizontale ramen) en platte daken.
Belangrijkste problemen die bij de renovatie/herbestemming van dit soort gebouwen aangepakt moeten worden zijn eigen aan historische brutalistische betonarchitectuur: betonrot, gebrek aan isolatie, enkel glas, esthetische degeneratie van het geveloppervlak en het ‘ruwbouw = afbouw-principe’.


De herbestemmingsstudie gaat uit van een valorisatie en herontwikkeling van de site. De opdracht heeft specifiek als doel om een drietal herbestemmingsscenario’s te definiëren voor het modernistische gebouw en de financiële en architecturaal-technische haalbaarheid na te gaan.
We hebben niet de ambitie om een “ontwerp” voor te leggen, maar wel een praktische nota waarin duidelijke verwachtingen worden beschreven voor een toekomstig ontwerp.
Een eerste stap in het behoud en revalorisatie van dit unieke erfgoed.















opdrachtgever
broeders van liefde vzwbijgestaan door
PMV – Vlaamse Participatie MaatschappijStudiebureau
Van HoorickxKnack Weekend, De Turnhoutse school: onbeminde architectuur van eigen bodem, 05/2018
DEEL
Volgende
Vorige