Architects in Motion en Master Interior organiseerden op zondag 22 juni 2025 voor een select aantal genodigden in de Schouwburg van Cultuurhuis De Warande in Turnhout een uniek benefietevent rond architecturale archieven en erfgoed. In samenwerking met AR-TUR en Erfgoed Noorderkempen werden partners, erfgoedliefhebbers en betrokken ontwerpers uitgenodigd om de heruitgave van de uitverkochte publicatie Architectuur in de golden sixties – De Turnhoutse School financieel te steunen.












AR-TUR, Heruitgave | 'Architectuur in de golden sixties: de Turnhoutse School' komt terug!, 12/2025
made-in.be, Groen licht voor hotel- en restaurantproject, 11/2025
made-in.be, Délio kip curry van Signature Foods België in de top 5 van ‘Het product Made in Kempen’: “Bereid met passie en vakmanschap in Turnhout”, 11/2025
VRT MAX, In Hemelsnaam - De abdij van Brecht in beeld, 10/2025
Architectura, AIM transformeert school in Arendonk tot groene leeromgeving, 10/2025
Architectura, Herontwikkeling van basisschool Voorheide: een harmonieuze combinatie van renovatie en nieuwbouw, 08/2025
Kubus, Architects in Motion verenigt techniek en menselijkheid bij abdijrenovatie, 08/2025
Bouwen aan Vlaanderen, Soudal Plant 5 - Brandveiligheid als basisvereiste voor fabrikant met wereldfaam, 08/2025
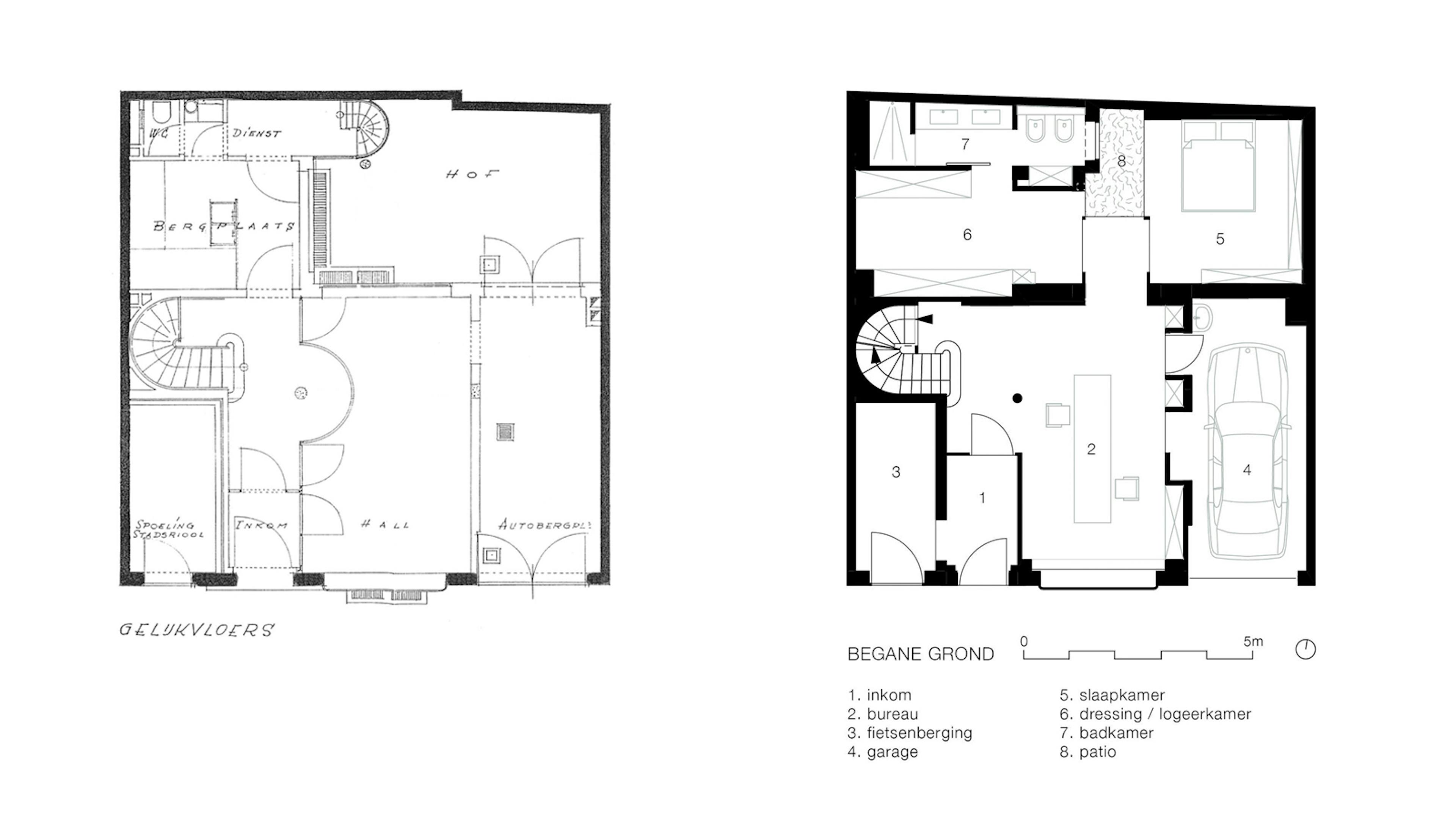
Een koppel waarvan de kinderen reeds enige tijd het huis uit waren, wilden hun ruime woning aan de rand van Turnhout inruilen voor een compacte woongelegenheid in het centrum van de stad. Hun oog viel op de woning J. Hermans van architect Edward Van Steenbergen. De woning dateert van 1938-1939 en staat geregistreerd als jong erfgoed, een belangrijk uitgangspunt tijdens zowel het ontwerpproces als de uitvoering.




Het ontwerpproces was een evenwichtsoefening tussen het handhaven van het jonge, verwaarloosde erfgoed en het realiseren van hedendaags wooncomfort voor de opdrachtgever. Om te voldoen aan de vraag van de opdrachtgever onderging de bestaande woning een grondige metamorfose, dit met de nodige aandacht voor de huidige EPB-eisen. De woning werd volledig open getrokken en achteraan werd een nieuwe aanbouw uitgewerkt. Het terras werd verplaatst van de begane grond naar de eerste verdieping. Deze ingrepen resulteren in meer oppervlakte, ruimtelijkheid en licht. Daarnaast werden de technische installaties herbekeken. Doordachte materiaalkeuzes en aandacht voor vormelijke details, zowel binnen als buiten, vormen de basis voor het behoud van het eigenlijke karakter van de woning. Zo werd de voorgevel hersteld in zijn oorspronkelijke staat, met behoud van het gebogen raam op de begane grond. Ook het pronkstuk van de woning, de monumentale trap met originele leuning, is volledig behouden.




Kortom, De woning werd omgebouwd tot een functionele, sfeervolle en compacte stadswoning, met aangename buitenruimte, die de sfeer blijft uitstralen die E. Van Steenbergen bij zijn ontwerp nastreefde. De specifieke aandacht voor hedendaagse eisen naar wooncomfort en het behoud van de originele vormelementen maken dat de kostprijs van deze renovatie gelijk is aan die van een nieuwbouwappartement. Dit project toont aan dat er, mits het nodige engagement, toekomst is voor jong architecturaal erfgoed in steden.





DEEL
Volgende
Vorige